Platform
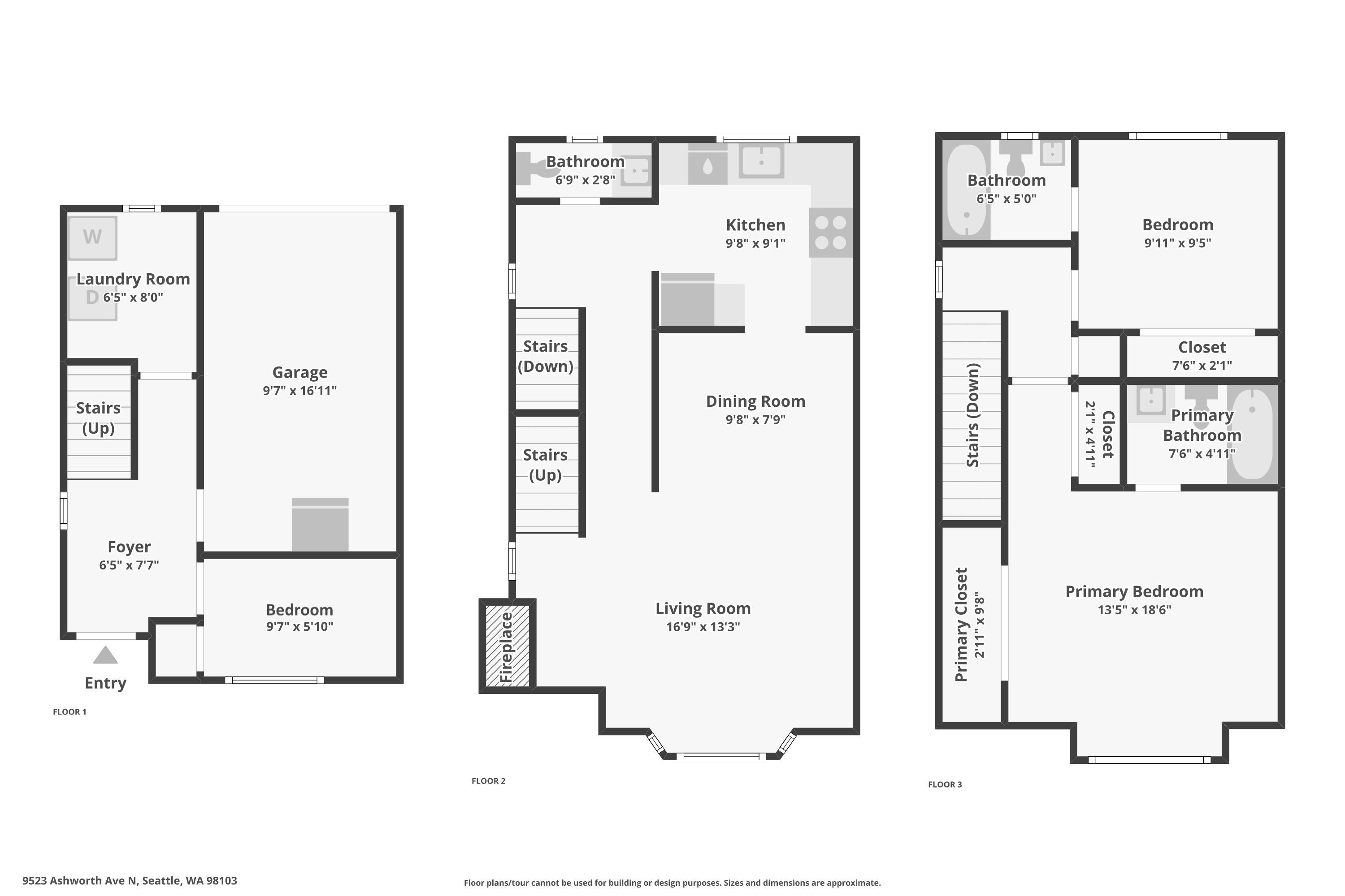
New year, new home, new you! Tucked back away from the street just across from charming Licton Springs Park, a private terrace leads you into this newly renovated townhome that stands out from the rest! Fresh paint, new lighting, updated appliances, quartz counters and new carpet in all three bedrooms let you move in effortlessly with peace of mind. Sunlight pours in through abundant windows to highlight a main level with hardwood floors, a dedicated dining area and a handy half bathroom. Two bedrooms upstairs both include their own full ensuite bathroom while the lower level third bedroom works great as an office. Central, convenient location close to Green Lake, schools, great eats, buses, Northgate light rail and all the modern amenities. Achieve your homeownership goals for 2026 here!
📍NEIGHBORHOOD HIGHLIGHTS
Nestled across the street from beloved Licton Springs Park, this townhome could not be more conveniently located! You get the best of both worlds here: a peaceful, quiet location surrounded by greenery, and easy access to all the in-city conveniences, as well as some of north Seattle's favorite neighborhoods. Centered between Greenwood, Green Lake, and Northgate, everything you could need is at your doorstep; check out a blossoming restaurant and nightlife scene in Greenwood, enjoy outdoor recreation and views at Green Lake, or take advantage of great shopping, the Kraken Community Iceplex, light rail access, and more amenities just blocks away in Northgate. Parks, coffee, groceries, and even a movie theater are all within minutes.
Getting downtown in a breeze thanks to nearby access to light rail, bus lines, I-5 and Highway 99 - your commute couldn't be easier! UW, Fremont, Ballard, Queen Anne, and other beloved areas are just a hop, skip or jump away as well. Achieved your homeownership goals in 2026 without sacrificing on location - this neighborhood is the place to be.
🚘 Commuting:
🌲 Parks:
🏫 Schools:
🍎 Grocery Stores:
🔪 Restaurants:
☕️ Coffee/Bakeries:
Contact us with all your questions!

Let's Chat!
Get instant access to the latest properties to hit the real estate market.
Over $300 million sold in the last 5 years.
We've been recognized for going above & beyond.
You can count on exceptional service from an outstanding agent.
We're here for you! We can help you buy or schedule showings for you!
See more homes